总价77亿待拍!9月常州13块优质地块将入市,火车站南广场巨无霸地块却…
扫描到手机,新闻随时看
扫一扫,用手机看文章
更加方便分享给朋友

8月主城区共出让13宗地块,其中丁塘河湿地公园西侧A地块、经开区两宗地块以及新桥地块纷纷流拍,其余大半地块也是“底价”成交。8月份的土拍市场用“惨淡”来形容一点不为过。
8月份土拍市场的落寞对于购房者来说或许是件好事,市场的降温间接的影响了房地产市场,逐渐的让房价趋于平缓,而对于一贯号称“金九银十”的九月来说,土拍市场又将有何变化呢?
9月土拍市场重燃,多宗热门地块待拍!
8月土拍市场的落寞似乎是为了等待9月的雄起,9月份共13块涉宅地块参与拍卖(火车站南广场南侧地块延期拍卖),其中,三毛纺织地块、荷园二期地块、太平洋印刷厂地块等多宗热门地块也在其中,同时,新北区的龙湖原山南侧地块、滨河小区地块两宗流拍、终止地块也重新上架,能否逆袭,我们拭目以待。

(9月土拍统计,点击看大图)
9月份的土拍市场可以说是今年备受关注,多宗热门地块自带“暴击”属性,不知道结果如果,我们先来了解一下。
三毛纺织地块

从规划条件来看,三毛纺织地块容积率1.8<R≤2.2,建筑限高不大于80米,建筑密度≤30%,绿地率≥30%,总用地面积108486平方米,二类居住用地。

按照规划图显示,三毛纺织地块未来将配建一处建筑面积不小于6000㎡的菜场,建议在地块东北角设置。配套一座建筑面积不少于7560㎡,用地面积不少于9450㎡的幼儿园,沿城市支路设置。配套一处建筑面积不小于4000㎡的居家养老服务中心(含社区养老服务设施),首层建筑面积不小于800㎡,等等。

地块位于天宁老城区,地处丽华朝阳成熟生活圈,劳动路和丽华路交界处,东至采菱支路、南至丽城路,西至丽华北路、北至劳动中路。

交通配套:周边现有1、16、17、33、231路、8路、64路、303路等多条公交线路经过,距市中心仅2000余米,丽华路劳动路交叉处规划轨道交通朝阳站。
休闲配套:靠近市中心核心位置,临近千年运河,北距市中心文化宫生活区2000余米,过朝阳桥,东坡公园、红梅公园步行即可到达。
商业配套:朝阳农贸市场、光华路农贸市场、信特超市、来客隆大型超市等多处大型购物场所,配套包括地块西北角一处6000㎡大型菜场。
教育配套:地块东侧东坡小学(规划48班)、常州市朝阳中学。
医疗配套:地块南侧现有德安医院及养老服务产业。
荷园二期地块

地块位于钟楼区新闸街道,周边成熟社区林立,位于玉龙南路东侧、新龙路南侧,东至城西道路三、南至城西道路二十六,出让面积86303m2,容积率1.8。


交通配套:环境优美、道路开阔、交通便捷,向东行驶2000米即可到达外环高架,周边有90路、98路、111路、58路等公交线路,高架机场线目前正在建设,建成后对该区域交通也更为便捷。
休闲配套:地块内规划配建1出基层社区中心,包括社区服务站(计划生育服务室、警务室、慈善超市)、文体活动室、居家养老服务站、残疾人康复室和室外体育活动场地。
教育配套:常州市新闸中学、北京师范大学常州附属学校。
周边社区:新康花苑、新闸社区、星港花苑、绿地世纪城、绿都万和城、天山花园,
目前新闸区域安置房以及二手房居多,新房库存较少。由于北师附属小学和中学设立在此,是优质民办学校,随着知名度提升,该区域的新房需求也在增大。
北郊中学周边地块

该地块位于通江南路、崇文路交叉口东南侧,其属于中心分区荷花池街道,商住用地,总出让面积为23076平米,容积率1-4.7,起始价38000万元,起始楼面价3504元/平米,较高限价70000万元,较高限价楼面价6454元/平米。
地块位于新北核心新市府板块,依托城市主干道通江路通达全城,周边商圈配套齐全。目前周边房源新旧小区都相对集中,除西新桥、通济新村、斗巷公寓等老小区,此外新城首府、深业华府、金新鼎邦等是新交付小区,房源较新。
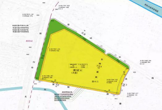
龙湖原山南侧地块

从规划条件来看,该地块出让面积50913平米,容积率>1.0且≤1.5,出让起始价76700万元,较高限价152700万元,经计算,地块起始楼面价10043元/㎡,限制楼面价19995元/㎡。

虽然龙湖原山南侧地块在土地面积和规划方面做了瘦身,然而限制条件依旧比较多,具体如图所示:


(备注:本次出让地块为图中GX070221地块)
地理位置:常州市新北区三井街道,东经120路以东、太湖东路以南、东支河以西、北塘河以北。
交通资源:宗地西接东经120,北临太湖东路和河海东路,龙汇路贯穿其中。邻近高架高速,另在建地铁1号线直线距离宗地2.3公里。
商业资源:常州世茂广场,常州恐龙园以及周边商业街区迪诺水镇
教育资源:香槟湖幼儿园、香槟湖小学、三井实验小学香槟湖校区。2公里范围内常州龙城小学,青龙实验小学、第二十四中学天宁分校。
生态资源:南侧有宽阔的河道和绿化带,北侧是龙湖原山别墅,两边道路绿化率很高,北边环球恐龙城,绿化环境都非常好。
太平洋印刷厂地块

从规划条件来看,该地块出让面积51695平米,出让起始价93000万元,较高限价155000万元,经计算,地块起始楼面价7844元/㎡,限制楼面价13074元/㎡。


地理位置:新北区河海中路北侧、衡山路东侧、岷江路南侧
交通资源:周边有11、13、19、46、92、528、B1、B10、B13、B19等多条公交线路;沿通江路,南下龙城大道高架,通达全城,北上沪蓉高速,接驳沪宁。
商业资源:南侧:新北万达广场、丰臣国际广场、力宝广场;北侧:荣盛曼哈顿广场、道生中心、时代广场,江南环球港。
文体设施资源:市政府、奥体中心、常州文化广场
教育资源:国英小学、三井实验小学,河海中学、新北区实验中学
生态资源:常州中央艺术公园,藻江河,新北中心公园
来源:易房无忧(ID:efang_51)
声明:本文由入驻焦点开放平台的作者撰写,除焦点官方账号外,观点仅代表作者本人,不代表焦点立场。


